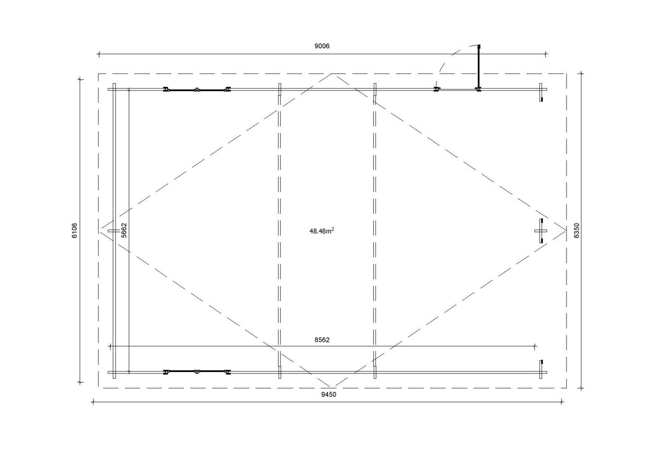
Doppelgarage aus Holz Laurus, 6×9 m, BF 50 m² ohne Tore
SKU: WHG-420.21.91244
635x945
297
Preis € 7.400,00 inkl. 19% MwSt.
Entdecken Sie die Holzgarage Laurus ohne Tore – fast 50 m² idealer Lösung für Ihre Fahrzeuge und Vieles mehr. Sektionaltore oder Holztore stehen als Erweiterungsoptionen zur Verfügung.
In dieser Garage finden zwei Fahrzeuge Platz und bei einer Innenlänge von 8,65 m haben Sie im Stirnende der Garage noch viel Stauraum. Eine Halbglastür im vorderen Bereich und zwei Fenster im hinteren Bereich der Garage sorgen für Helligkeit.
Für das Satteldach können Sie zwischen verschiedenen Dacheindeckungen wählen, einschließlich Bitumenschindeln und Stehfalzblech. Auch bei der Fassadengestaltung haben Sie diverse Optionen.
Je nach Bundesland kann diese Garage sogar genehmigungsfrei aufgestellt werden. Gerne übernehmen wir Ingenieurleistungen für Sie wie auch die Montage, sollten Sie das lieber in unsere Hände geben.
Bestellen Sie noch heute diese Garage online und haben Sie in maximal 10 Wochen den Bausatz vor ihrem Lieferort.


































Tauchen Sie Ihr Blockbohlenhaus, Gartenhaus oder Holzgarage in moderne Eleganz mit unserer senkrechten Holzverkleidung mit Boden-Leisten-Schalung ein! Diese Variante bietet wie die klassische Boden-Deckel-Schalung eine geschlossene Schalung und sorgt nicht nur für eine ansprechende Optik, sondern auch für optimalen Schutz Ihrer Blockbohlenkonstruktion.
Verschönern Sie Ihr Blockbohlenhaus, Gartenhaus oder Holzgarage mit unserer senkrechten Holzverkleidung mit Boden-Deckel-Schalung und verleihen Sie Ihrem Gebäude einen klassischen Charme und zeitlose Eleganz! Diese Verkleidungslösung bietet nicht nur Ästhetik, sondern gewährleistet auch eine robuste Konstruktion, die Langlebigkeit und Schutz gewährleistet. Die senkrechte Ausrichtung mit Boden-Deckel-Schalung ermöglicht sanfte Übergänge zwischen den einzelnen Brettern. Die Verkleidungsbretter sind aus nordischer Fichte hergestellt und strahlen Wärme und Gemütlichkeit aus. Sie harmonieren mit verschiedenen Stilen, passen jedoch am besten zu denen, die ein klassisches Aussehen bevorzugen. Unser Set enthält Verkleidungsbretter mit einer Breite von 95 mm sowie unterstützende Träger aus 30×50 mm nordischer Kiefer. Egal, ob Sie Ihrem Gartenhaus einen klassischen Look verleihen oder Ihrem Blockbohlenhaus einen einladenden Schwedenhausstil schaffen möchten, unsere senkrechte Holzverkleidung mit Boden-Deckel-Schalung ist die richtige Wahl für Sie!
Verleihen Sie Ihrem Blockbohlenhaus, Gartenhaus oder Ihrer Holzgarage mit unserer diagonalen Holzverschalung mit verspielter Bodenleistenschalung eine einzigartige und verspielte Note! Diese besondere Verkleidungslösung vereint Funktionalität mit kreativem Design und bietet einen Blickfang für Ihr Gebäude, der garantiert alle Blicke auf sich zieht.
Tauchen Sie Ihr Blockbohlenhaus, Gartenhaus oder Holzgarage in natürliche Eleganz mit unserer senkrechten Holzverkleidung ein! Diese Verkleidungslösung verleiht jedem Produkt einen Hauch von modernem Charme und zeitloser Schönheit. Die Verkleidungsbretter aus nordischer Fichte strahlen Wärme und Gemütlichkeit aus. Mit einer Breite von 16x95mm bieten sie eine robuste und gleichzeitig ästhetisch ansprechende Oberfläche. Die unterstützenden Träger aus 30x50mm nordischer Kiefer sorgen für eine stabile Montage. Die senkrechte Ausrichtung verleiht Ihren Wänden eine dynamische und moderne Ästhetik, die perfekt mit verschiedenen Stilen harmoniert. Diese offene Schalung ermöglicht eine luftige und einladende Atmosphäre, während sie gleichzeitig für eine zuverlässige Struktur sorgt. Egal, ob Sie Ihrer Holzgarage einen Hauch von Natürlichkeit verleihen oder einem Blockbohlenhaus eine einladende Note verleihen möchten, unsere senkrechte Holzverkleidung ist die richtige Wahl.
Erwecken Sie Ihr Blockbohlenhaus, Gartenhaus oder Holzgarage mit unserer diagonalen Holzverkleidung zu neuem Leben! Diese einzigartige Verkleidungslösung verleiht Ihrem Gebäude einen dynamischen und modernen Look, der garantiert alle Blicke auf sich zieht. Anders als bei herkömmlichen senkrechten oder horizontalen Verkleidungen sind die Bretter hier in einem Winkel von 45° angebracht, was eine interessante visuelle Wirkung erzeugt.
Erleben Sie die natürliche Schönheit und zeitlose Eleganz mit unserer Verkleidung aus Naturschieferplatten! Hergestellt aus hochwertigem Naturstein in einem ansprechenden Anthrazit-Farbton, verleiht diese Verkleidungslösung Ihrem Blockbohlenhaus, Gartenhaus oder Holzgarage einen Hauch von Luxus und Raffinesse.











































Es liegen noch keine Beiträge vor.